¡Ö¥ª¡¼¥¯ ¥Õ¥ë¥×¥é¥ó¥¯¡×¥Õ¥í¡¼¥ê¥ó¥°»Ü¹©¼ê½çÀâÌÀ¡¡¡¡¹âÉʼÁ¤Î¥Õ¥í¡¼¥ê¥ó¥°¤òÆÃµö¼èÆÀºÑ¤ÎÀܹ祷¥¹¥Æ¥à¤Ë¤è¤ê¡¢¿×®´Êñ¤Ë¼Â¸½¤¹¤ë»Ü¹©¥¬¥¤¥É¤Ç¤¹¡ª
¢£¾²¡¦ÊÉ¡¦Å·°æ¡¦³¬ÃÊ¡ä ¥Õ¥í¡¼¥ê¥ó¥°¡ÊÌÚ¡¦ÃÝ¡¦¥³¥ë¥¯¡Ë¡¡ ¢£¼«Á³ÁǺà¡ä ¾²¡¡
| ³ô¼°²ñ¼Ò ËÌÍθò°× | |||||||||||||||||||||
|
¾¦ÉʤΤªÌ䤤¹ç¤ï¤» 03-6841-8211 ÅìµþÅÔ¹¾Åì¶èÍÌÀ3-7-18¡¡ÍÌÀ¥»¥ó¥È¥é¥ë¥¿¥ï¡¼10F |
¹âÉʼÁ¤Î¥Õ¥í¡¼¥ê¥ó¥°¤òÆÃµö¼èÆÀºÑ¤ÎÀܹ祷¥¹¥Æ¥à¤Ë¤è¤ê¡¢¿×®´Êñ¤Ë¼Â¸½¤¹¤ë»Ü¹©¥¬¥¤¥É¤Ç¤¹¡ª¡Ö¥ª¡¼¥¯ ¥Õ¥ë¥×¥é¥ó¥¯¡×¥Õ¥í¡¼¥ê¥ó¥°»Ü¹©¼ê½çÀâÌÀ
¡ÖÍ¢Æþ·úºà¡¦Í¢Æþ¥«¡¼¥Æ¥óÀ¸ÃÏ¡¦½»ÂðÍÑÀßÈ÷¡¢¥¤¥ó¥Æ¥ê¥¢¥³¡¼¥Ç¥£¥Í¡¼¥È¶È̳¡¢·ú¶ñ¡¢²È¶ñ¡× ¤Ê¤é ¡Ö³ô¼°²ñ¼Ò ËÌÍθò°×¡×¤Ø¡ª ¢¡¡þ¢¡ ³ô¼°²ñ¼Ò ËÌÍθò°× ¤«¤é¤Î¤ªÃΤ餻 ¢¡¡þ¢¡ ̵¹¤¥¹¥¿¥¤¥ë¡Ö¥Ñ¥é¥É¡¼¥ë¡×¥Õ¥í¡¼¥ê¥ó¥°¡¡¥ª¡¼¥¯ ¥Õ¥ë¥×¥é¥ó¥¯
º£¤À¤±¤ÎÆÃÊ̤ʤªÃÍÃʤǤ´Ä󶡤·¤Æ¤¤¤Þ¤¹¡ª
¥É¥¤¥ÄParador¼Ò¤Î¹âµé¾²ºà¡Ö¥Ñ¥é¥É¡¼¥ë¥Õ¥í¡¼¥ê¥ó¥°¡×¤È°Â¿´¤ÎÆüËÜÀ½Åŵ¤¾²ÃÈ˼¡Ö¾²ÃȤÀ¤ó¡×¡Ê¥¹¥ê¡¼¥¨¥¹¥Æ¥¯¥Î¼ÒÀ½¡Ë¤ò¹ç¤ï¤»¤Æ¥È¡¼¥¿¥ë¤Ê¤´Ä󰯤ò¤¤¤¿¤·¤Þ¤¹¡£
TEL:044-711-4481
ôÅö¡§»°Âð¸ùÇÏ ¡Ö¥ª¡¼¥¯ ¥Õ¥ë¥×¥é¥ó¥¯¡×¥Õ¥í¡¼¥ê¥ó¥°»Ü¹©¼ê½çÀâÌÀ
¥Õ¥í¡¼¥ê¥ó¥°¤Î»Ü¹©¤Ï¡¢¶õ´Ö¤Î°õ¾Ý¤òÂ礤¯º¸±¦¤¹¤ëÂçÀڤʹ©Äø¤Ç¤¹¡£
³«Éõ¸å¤Î³Îǧ¥Ñ¥Ã¥±¡¼¥¸¤ò³«º¤·¤¿¤é¡¢»Ü¹©Á°¤Ë¥Õ¥í¡¼¥ê¥ó¥°³Æ¥Ü¡¼¥É¤Ë·ç´Ù¤¬¤Ê¤¤¤«³Îǧ
Ìܤ˸«¤¨¤ë·ç´Ù¤ä»½ý¤Î¤¢¤ë¥Ü¡¼¥É¤Ï»Ü¹©¤·¤Ê¤¤¤Ç¤¯¤À¤µ¤¤¡£
»Ü¹©Á°¤Î¥Õ¥í¡¼¥ê¥ó¥°½ç²½
¥Õ¥í¡¼¥ê¥ó¥°¥Ñ¥Ã¥±¡¼¥¸¤Ï¡¢»ÈÍѶõ´Ö¤Ç»Ü¹©Á°48»þ´Ö°Ê¾å¡¢¼¼²¹17¡Á24¡î¡¢ÁêÂм¾ÅÙ30¡Á65%¤Î¾ò·ï²¼¤Ç½ç²½¤µ¤»¤Þ¤¹¡£
»Ü¹©(Ä̾ï»Ü¹©¡¦¾²ÃÈ˼ʻÍѻܹ© ¶¦ÄÌ)¥Ñ¥é¥É¡¼¥ë¥Õ¥í¡¼¥ê¥ó¥°¤Îɸ½à»Ü¹©¤Ï¡¢¥µ¥Í¤ÈÄìÌ̤ÎÀÜÃå»Ü¹©¤Ç¡¢ÀÜÃåºÞ¤Ïɬ¤º²¼µÀÜÃåºÞ¤ò¤´»ÈÍѤ¯¤À¤µ¤¤¡£ ¢¡ÌÚ¹©Íѥܥó¥É ¥³¥Ë¥·¡¡KU928RS ¥Õ¥í¡¼¥ê¥ó¥°¤ÎĹÊÕ¤ÈûÊÕ¤ÎξÊý¤Î¥µ¥Í¤Î¾åÉô¤Ë±è¤Ã¤ÆÅÉÉÛ¤·¤Þ¤¹¡£
¢¡¥»¥á¥À¥¤¥óUM-600V(ÉÊÈÖ002120) ¥Õ¥í¡¼¥ê¥ó¥°Î¢Ì̤Ȳ¼ÃϤÎÀÜÃå¤Ë»ÈÍѤ·¤Þ¤¹¡£(¹±µ×Ū¤ËÆðÀ¤òÊݤÄÌÚ¹©Íѥܥó¥É)
»Ü¹©ÊýË¡
ÇÏÆ§¤ßÄ¥¤ê(¤¦¤Þ¤Õ¤ß¤Ð¤ê)¡¦¥é¥ó¥Ë¥ó¥°¥Ü¥ó¥É(RunningBond)
³ÆÎó¤Î·Ñ¤®ÌܤòȾʬ¤º¤Ä¤º¤é¤·¤ÆÄ¥¤ë»Ü¹©
ÍðÄ¥¤ê(¤é¤ó¤Ð¤ê)¡¦¥é¥ó¥À¥à¡¦¥Ñ¥¿¡¼¥ó(Random Pattern)
ÈĤηѤ®ÌܰÌÃÖ¤ò¥Ð¥é¥Ð¥é¤Ë¤·¤ÆÄ¥¤ë»Ü¹©
»Ü¹©Á°¤Ë³ÆÈĤ˷ç´Ù¤¬¤Ê¤¤¤«³Îǧ¤·¡¢°Ê²¼¤ÎÅÀ¤ËÃí°Õ¤·¤Æ¤¯¤À¤µ¤¤¡£
ºÇ½é¤ÎÎó¤Î¥Ü¡¼¥ÉÉý¤ÈºÇ¸å¤ÎÎó¤Î¥Ü¡¼¥ÉÉý¤ò·è¤á¤ë°Ù¤Ë¡¢ÀßÃÖÊý¸þ¤Èľ³Ñ¤ËÉô²°¤ÎÉý¤ò·×¤ê¤Þ¤¹¡£
ºÇ½é¤ÎÎó¤Î¥Ü¡¼¥É¤Î¥ª¥¹¥µ¥Í¦¤ò¥«¥Ã¥È¤·¤Æ¡¢¥Ü¡¼¥É¤ò·è¤á¤¿Éý¤Ë¤·¤Þ¤¹¡£
°ìÎóÌܤλܹ©¤Ï¡¢Éô²°¤Îº¸¶ù¤«¤é»Ï¤á¤Þ¤¹¡£
¥Ï¥ó¥Þ¡¼¤ò»ÈÍѤ¹¤ëºÝ¤Ï¡¢É¬¤ºÊݸî¥Ö¥í¥Ã¥¯¤ò»ÈÍѤ·¤Þ¤¹¡£
¡ÖÀÚ¤êÍî¤È¤·¤¿¥Ü¡¼¥É¤òÊɤȥܡ¼¥É¤Î´Ö¤Ë¡ÊΩ¤Æ¤Æ¡ËÅö¤Æ¤ë¡×Ëô¤Ï¡¢¡Ö¥×¥é¥¹¥Á¥Ã¥¯À½¥¹¥Ú¡¼¥µ¡¼¤ò»ÈÍѤ·¡×ɬÍפÊÊɤȤηä´Ö¤ò¶ÒÌڤβ¼Ìó10mm¤ò³ÎÊݤ·¤Þ¤¹¡£
³ÆÎó¤ÎºÇ¸å¤Î¥Ü¡¼¥É¤Ï¶ÒÌÚʬÊɤȤηä´Ö¡ÊÌó10mm¡Ë¤ò³ÎÊݤ·¤¿Ä¹¤µ¤Ë¥«¥Ã¥È¤·¤Þ¤¹¡£
2ÎóÌܤϤޤ¿º¸¤«¤é»Ü¹©¤·¤Þ¤¹¡£
ûÊդηѤ®Ìܤϡ¢Á°¤ÎÎó¤Î·Ñ¤®ÌܤÈ40cm°Ê¾å¤º¤é¤·¤Æ¤¯¤À¤µ¤¤¡£
¥Ö¥í¥Ã¥¯¤È¥Ï¥ó¥Þ¡¼¤ò»È¤Ã¤Æ¥Ü¡¼¥É¤È¥Ü¡¼¥É¤ò¹ç¤ï¤»¡¢·Ñ¤®Ìܤ¬ÊĤ¸¤ë¤Þ¤Ç¡¢¥Ü¡¼¥É¤òÁ°¥Ü¡¼¥É¤Ë²¡¤·ÉÕ¤±¤Þ¤¹¡£
»Ü¹©¸å¥¯¥ê¡¼¥Ë¥ó¥°¡£¤Û¤¦¤¤äÁݽüµ¡¤Ç¡¢ÌÚ¶ý¤ä¤Û¤³¤ê¤òľÀܼè¤ê½ü¤¤¤Æ¤¯¤À¤µ¤¤¡£ »Ü¹Ôµ¬Â§(»Ü¹©²Õ½ê´Ä¶)²¼ÃϤξõÂÖ
´û¸¤Î¾²²¼ÃϤϤ¹¤Ù¤Æ¿åÊ¿¡ÊŤµ1m¤ÇºÇÂç3mm¡Ë¤Ç¡¢½¼Ê¬´¥Á礷¤Æ¤ª¤ê¡¢½½Ê¬¤Ê¹Å¤µ¤¬¤¢¤ë¤³¤È¡£À¶Áݤ·¤Ã¤«¤ê¤µ¤ì¤Æ¤¤¤ë¤³¤È¡£ ¾²²¼ÃϤ¬´Ë¤ó¤Ç¤¤¤ë¾ì¹ç¤ä¡¢PVC¤ä¥«¡¼¥Ú¥Ã¥È¤òÉߤ¤¤Æ¤¢¤ë¾ì¹ç¤Ï¡¢É¬¤º¤½¤ì¤é¤ò¼è¤ê½ü¤¤¤Æ¤¯¤À¤µ¤¤¡£¡Ê¿Þ2¡Ë
²¼ÃϤ¬¥³¥ó¥¯¥ê¡¼¥È¤ä¥¹¥¯¥ê¡¼¥É¤Î¾ì¹ç¤Ï½½Ê¬¤Ë´¥Á礷¤Æ¤¤¤ë¤³¤È¡£ ¶¯Å٤ȱÒÀ¸¾å¤Î´ÑÅÀ¤«¤é¡¢¥«¡¼¥Ú¥Ã¥È¤Ï¾²²¼ÃϤȤ·¤ÆÅ¬¤µ¤Ê¤¤¤Î¤Ç¼è¤ê½ü¤¯¤³¤È¡Ê¿Þ3¡Ë¡£ ´û¸¤ÎPVC¡¢CV¡¢¥ê¥Î¥ê¥¦¥à¤Î¾å¤Ë»Ü¹©¤¹¤ë¾ì¹ç¤Ï¡¢¤½¤ì¤é¤¬¤·¤Ã¤«¤ê¸ÇÄꡦÀÜÃ夵¤ì¤Æ¤ª¤ê¡¢´Ë¤ó¤Ç¤¤¤ëÉôʬ¤¬Ìµ¤¤Íͤˤ·¤Þ¤¹¡£
¥¹¥¯¥ê¡¼¥É¤Î¿åʬ¤Ï¡¢Å¬Àڤʻ¬ÄêÁõÃÖ¤ò »ÈÍѤ·¤Æ¥Á¥§¥Ã¥¯¤·¤Æ¤¯¤À¤µ¤¤¡£
¹Ûʪ¤Î²¼ÃÏ*¤Î¾ì¹ç¡¢Í½ËÉÁ¼Ã֤Ȥ·¤ÆPE¥Õ¥£¥ë¥à¤ò²¼¤ËÉߤ¡¢¾øµ¤¥Ð¥ê¥¢¤È¤·¤Æ»ÈÍѤ·¤Þ¤¹¡Ê¥¹¥È¥ê¥Ã¥×¤¬30cm°Ê¾å½Å¤Ê¤ë¤è¤¦¤Ë¤·¡¢Ç´Ã奯¡¼¥×¤òŽ¤ê¡¢Ã¼¤Ëë¾õ¤Î¤Ï¤ß½Ð¤·Éôʬ¤ò»Ä¤·¡¢¶ÒÌÚ¤ò¼è¤êÉÕ¤±¤¿¸å¤Ë;ʬ¤ÊÉôʬ¤ò¥Ê¥¤¥Õ¤ÇÀÚ¤êÍî¤È¤·¤Þ¤¹¡Ë¡£ ÊɤȤηä´Ö
¼«Á³ÁǺà¤Ç¤¢¤ëÌÚºà¤Ïµ¤¸õ¾ò·ï¤Ë¤è¤Ã¤Æ¼ý½Ì¤·¤¿¤êËÄÄ¥¤·¤¿¤ê¤·¤Þ¤¹¡£
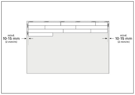
Êɤηä´Ö¤Ï¡¢¾¯¤Ê¤¯¤È¤âÊÒ¦Ìó10mm¡¢ÌÌÀѤ¬¹¤¤¾ì¹ç¤Ï¤½¤ì°Ê¾åɬÍפȤʤê¤Þ¤¹¡£ ÀßÃÖÊý¸þ¡¿¸÷¤ÎÆþ¼Í
ĹÊդϸ÷¤ÎÆþ¼ÍÊý¸þ¤ÈÊ¿¹Ô¤ËÀßÃÖ¤¹¤ë»ö¤ò¸¶Â§¤È¤·¤Æ¤¯¤À¤µ¤¤¡£ ÀßÃÖÊý¸þ¡¿Éô²°¤Î´Ö¼è¤ê
¥Õ¥í¡¼¥ê¥ó¥°¤ÎĹÊÕ¤ÏÉô²°¤ÎĹÊÕ¤Èľ³Ñ¤Ë¤Ê¤ë¤è¤¦¤Ë¤·¤Þ¤¹¡£ Ê£¿ô¤Î¥Ñ¥Ã¥±¡¼¥¸¤Î¥Ü¡¼¥É¤òÁȤ߹ç¤ï¤»¤Æ»Ü¹©
¥Ñ¥é¥É¡¼¥ë¥Õ¥í¡¼¥ê¥ó¥°¤Ï¡¢¼«Á³¤ÊÌÚÌܤ理ä¼Á´¶¤Ê¤É¤òÀ¸¤«¤·¤¿Å·Á³ÁǺà¥Õ¥í¡¼¥ê¥ó¥°¤Ç¤¹¡£
¡Ø¡Ö¥ª¡¼¥¯ ¥Õ¥ë¥×¥é¥ó¥¯¡×¥Õ¥í¡¼¥ê¥ó¥°»Ü¹©¼ê½çÀâÌÀ¡Ù
¤´Ãíʸ¡¿¤ªÌä¹ç¤»¡¿¥«¥¿¥í¥°¡¦»ñÎÁÀÁµá
ÅìµþÅԤΡ¡¡ÖÍ¢Æþ·úºà¡¦Í¢Æþ¥«¡¼¥Æ¥óÀ¸ÃÏ¡¦½»ÂðÍÑÀßÈ÷¡¢¥¤¥ó¥Æ¥ê¥¢¥³¡¼¥Ç¥£¥Í¡¼¥È¶È̳¡¢·ú¶ñ¡¢²È¶ñ¡×¡¡¤Ê¤é¡¡¡Ö³ô¼°²ñ¼Ò ËÌÍθò°×¡×¤Ø¡ª
| ||||||||||||||||||||
![]()
| |||||||||||||||||||||
















